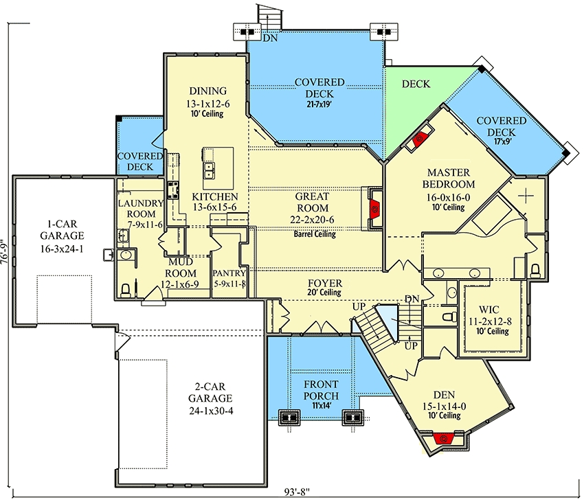
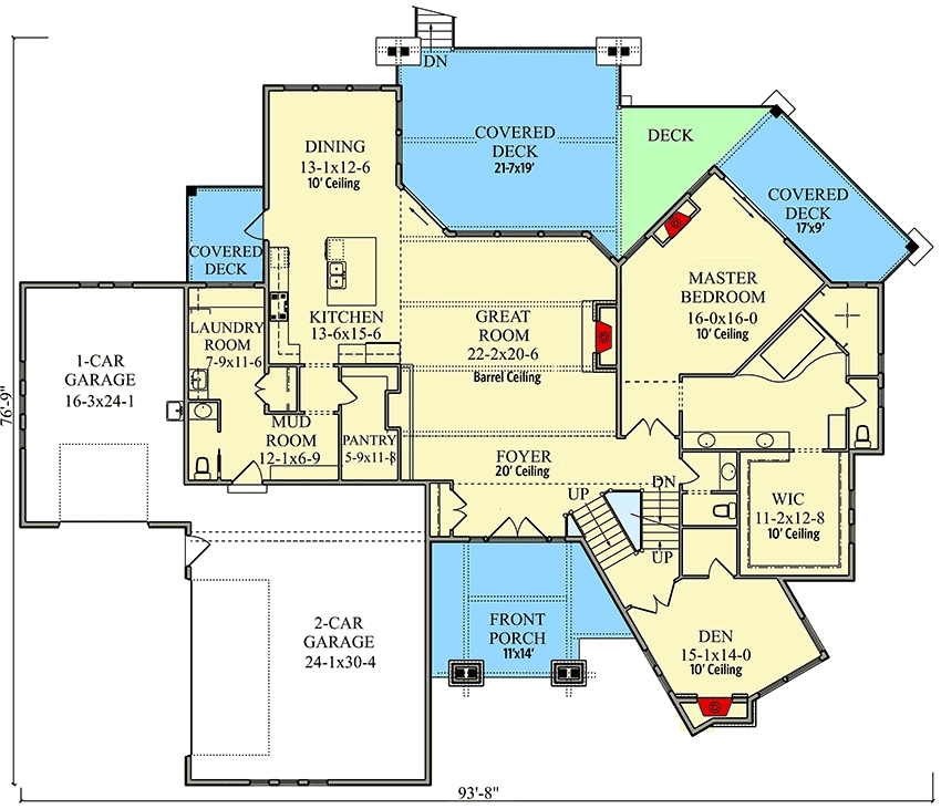
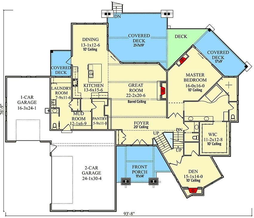
Main Level

2nd Floor

Lower Leve

l
Square Footage Breakdown
Total Heated Area:3,587 sq. ft.
1st Floor:2,613 sq. ft.
2nd Floor:974 sq. ft.
Porch, Combined:1,417 sq. ft.
Optional Lower Level:1,974 sq. ft.
Basement Unfinished:613 sq. ft.
Bedrooms:3, 4, & 5
Full Bathrooms:3, 4, & 5
Half Bathrooms:3
Standard Foundations:Walkout
Standard Type(s):2x6
Dimensions
Width:93' 9"
Depth:76' 9"
Max Ridge Height:25' 0"
Type:Attached
Area:1187 sq. ft.
Count:3 cars
Entry Location:Side, Front
Floor / Height:Lower Level / 9' 0"First Floor / 10' 0"Second Floor / 9' 0"
Primary Pitch:4 On 12