Main Level

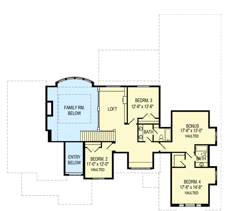
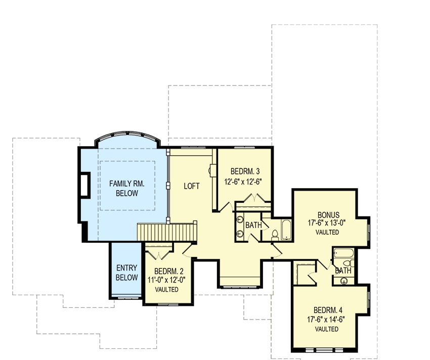
2nd Floor

Lower Level

Square Footage Breakdown
Total Heated Area:4,034 sq. ft.
1st Floor:2,397 sq. ft.
2nd Floor:1,637 sq. ft.
Storage:536 sq. ft.
Sports Court:1,244 sq. ft.
Covered Patio:225 sq. ft.
Deck:263 sq. ft.
Porch, Front:226 sq. ft.
Optional Lower Level:2,633 sq. ft.
Bedrooms:4, 5, & 6
Full Bathrooms:3, 4, & 5
Half Bathrooms:1
Standard Foundations:Walkout, Basement
Optional Foundations:Crawl
Standard Type(s):2x6
Dimensions
Width:98' 5"
Depth:85' 7"
Max Ridge Height:33' 4"
Type:Attached
Area:1125 sq. ft.
Count:3 cars
Entry Location:Side
Floor / Height:Lower Level / 10' 0"First Floor / 10' 0"Second Floor / 9' 0"Garage 20' 0"Sport Court 20' 0"
| Room | Type | Height |
|---|---|---|
| Living Room | Coffered | 10' 0" |
| Den | Coffered | 10' 0" |
| Family Room | Second Story | |
| Master Bedroom | Vaulted | |
| Bonus | Vaulted | |
| Bedroom 2 | Vaulted |
Primary Pitch:10 On 12
Secondary Pitch:12 On 12