Main Level

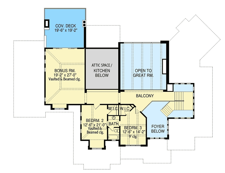
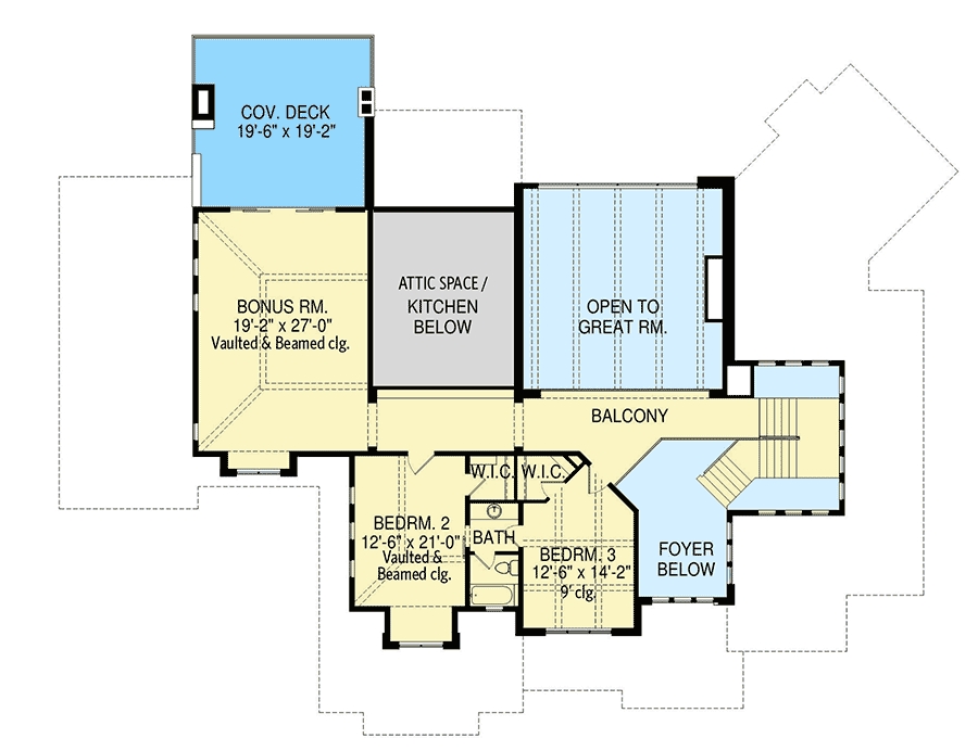
2nd Floor

Lower Level

Total Heated Area:4,856 sq. ft.
1st Floor:3,225 sq. ft.
2nd Floor:1,631 sq. ft.
Optional Lower Level:2,799 sq. ft.
Bedrooms:3 or 4
Full Bathrooms:2 or 3
Half Bathrooms:1 or 2
Standard Foundations:Basement
Optional Foundations:Crawl
Standard Type(s):
Width:102' 3"
Depth:81' 10"
Max Ridge Height:34' 2"
Type:Attached
Area:1762 sq. ft.
Count:5 cars
Entry Location:Side, Front
Floor / Height:Lower Level / 9' 0"First Floor / 10' 0"Second Floor / 10' 0"