Ground floor

1. Wiatrołap11,97 m2
2. Spiżarnia2,95 m2
3. Kuchnia16,44 m2
4. Pokój dzienny + jadalnia45,27 m2
5. Korytarz5,19 m2
6. Łazienka3,79 m2
7. Pokój11 m2
8. Garaż jednostanowiskowy25,14 m2
9. Pom. gospodarcze16,39 m2
Razem138,14 m2
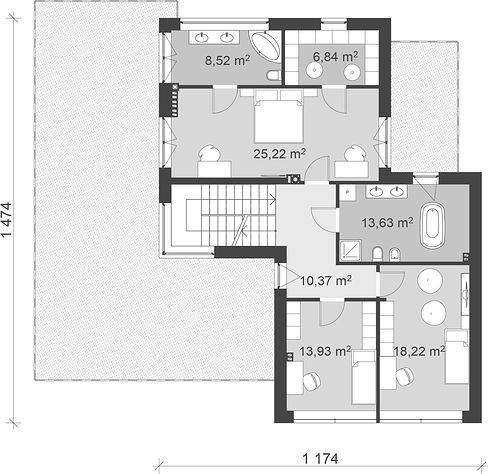
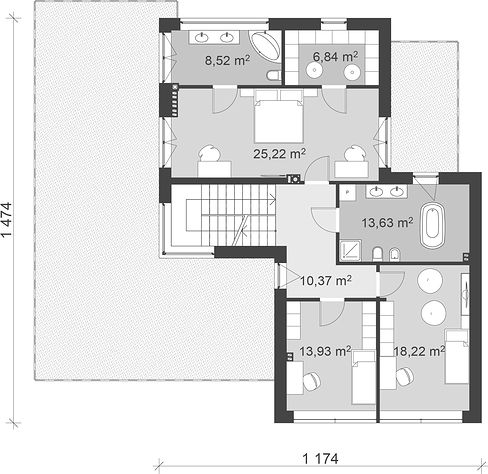
1st floor

1. Korytarz10,37 m2
2. Pokój13,93 m2
3. Pokój18,22 m2
4. Łazienka13,63 m2
5. Pokój25,22 m2
6. Łazienka8,52 m2
7. Garderoba6,84 m2
Razem96,73 m2
If you need more information, please feel free to contact us.
Email: vino@jncnhomes.com