Ground floor

1. Wiatrołap7,55 m2
2. Kuchnia17,16 m2
3. Pokój dzienny + jadalnia48,15 m2
4. Korytarz4,84 m2
5. Pokój15,34 m2
6. Łazienka5,68 m2
7. Schody7,57 m2
8. Pom. gospodarcze11,90 m2
9. Garaż dwustanowiskowy42,36 m2
10. Taras(64,85 m2)
Razem160,55 m2
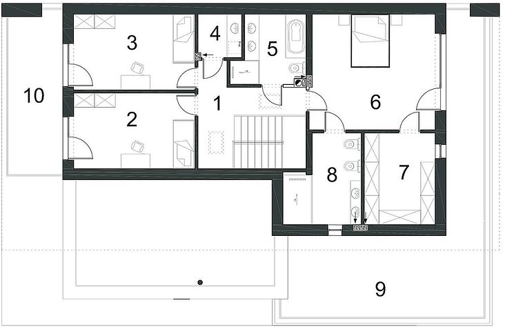
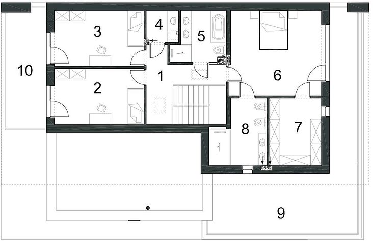
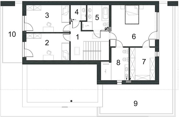
1st floor

1. Korytarz9,86 m2
2. Pokój15,53 m2
3. Pokój15,55 m2
4. Pom. gospodarcze3,18 m2
5. Łazienka7,79 m2
6. Pokój24,29 m2
7. Garderoba11,02 m2
8. Łazienka10,24 m2
9. Taras(41,17 m2)
10. Balkon(14,92 m2)
Razem97,46 m2
If you need more information, please feel free to contact us.
Email: vino@jncnhomes.com