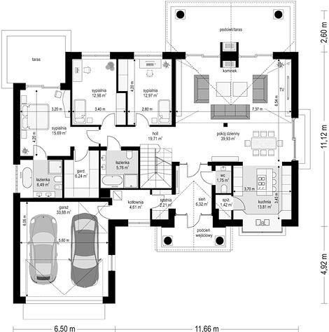
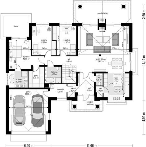
Ground floor

1. Wiatrołap6,32 m2
2. Garderoba2,21 m2
3. Kotłownia4,61 m2
4. Garaż dwustanowiskowy33,88 m2
5. Pokój dzienny39,93 m2
6. Kuchnia13,81 m2
7. Spiżarnia1,42 m2
8. Wc1,75 m2
9. Hall19,71 m2
10. Pokój12,97 m2
11. Łazienka5,76 m2
12. Pokój12,98 m2
13. Garderoba6,24 m2
14. Pokój15,69 m2
15. Łazienka6,49 m2
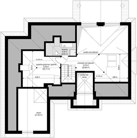
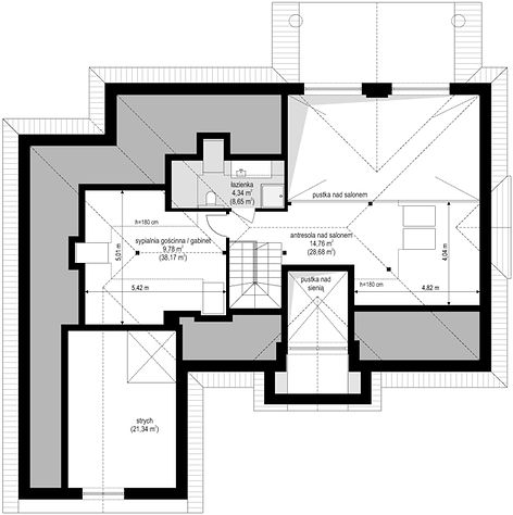
Attic

1. Antresola14,76 m2 (28,68 m2)
2. Łazienka4,34 m2 (8,65 m2)
3. Pokój9,78 m2 (38,17 m2)
4. Strych21,34 m2
Razem50,22 m2 (96,84 m2)
If you need more information, please feel free to contact us.
Email: vino@jncnhomes.com