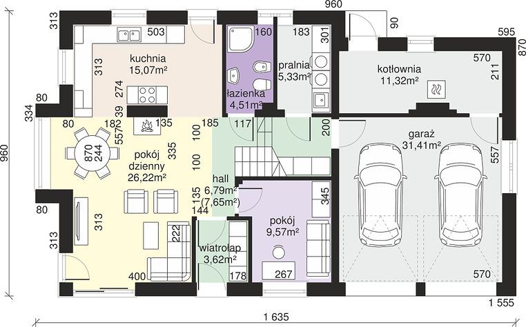
Ground floor

1. Wiatrołap3,62 m2
2. Hall6,79 m2 (7,65 m2)
3. Pokój dzienny26,22 m2
4. Kuchnia15,07 m2
5. Łazienka4,51 m2
6. Pom. gospodarcze5,33 m2
7. Pokój9,57 m2
8. Kotłownia11,32 m2
9. Garaż dwustanowiskowy31,41 m2
Razem113,84 m2 (114,70 m2)
Attic

1. Hall + schody9,66 m2
2. Pokój13,46 m2 (16,35 m2)
3. Pokój17,83 m2 (20,72 m2)
4. Pokój11,13 m2 (14,01 m2)
5. Łazienka8,07 m2 (10,95 m2)
6. Łazienka2 m2 (5,10 m2)
7. Garderoba2 m2 (5,99 m2)
8. Pokój20,07 m2
9. Strych3,33 m2 (10,49 m2)
Razem87,55 m2 (113,34 m2)
If you need more information, please feel free to contact us.
Email: vino@jncnhomes.com