Ground floor

1. Wiatrołap3,25 m2
2. Hall8,73 m2
3. Pokój dzienny30,45 m2
4. Kuchnia10,02 m2
5. Spiżarnia1,25 m2
6. Pokój12,84 m2
7. Łazienka2,73 m2
8. Pom. gospodarcze6,42 m2
9. Kotłownia14,36 m2
10. Garaż dwustanowiskowy32,82 m2
Razem122,87 m2
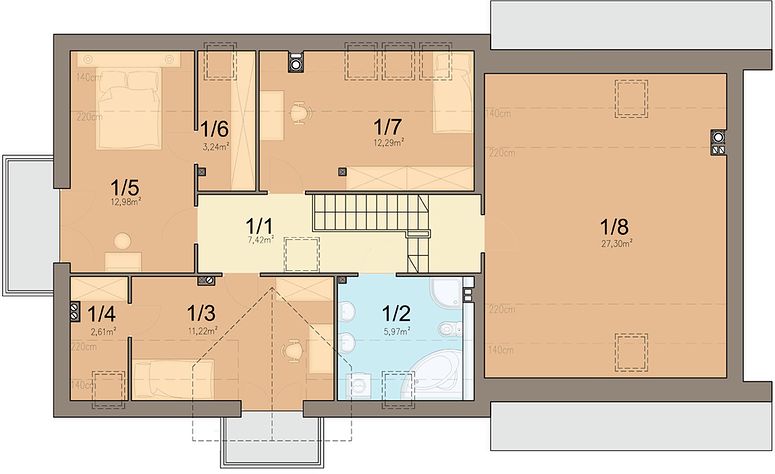
Attic

1. Hall7,42 m2
2. Łazienka5,97 m2 (8,88 m2)
3. Pokój11,22 m2 (14,34 m2)
4. Garderoba2,61 m2 (3,94 m2)
5. Pokój12,98 m2 (15,86 m2)
6. Garderoba3,24 m2 (4,57 m2)
7. Pokój12,29 m2 (17,09 m2)
8. Strych27,30 m2 (42,60 m2)
Razem83,03 m2 (114,70 m2)
If you need more information, please feel free to contact us.
Email: vino@jncnhomes.com