Ground floor

1. Wiatrołap5,04 m2
2. Kotłownia4,39 m2
3. Garaż jednostanowiskowy21,24 m2
4. Pokój dzienny + jadalnia35,84 m2
5. Kuchnia + spiżarnia10,79 m2
6. Korytarz4,43 m2
7. Wc1,54 m2
8. Łazienka6,56 m2
9. Pokój14,04 m2
10. Pokój + garderoba19,16 m2
11. Pokój11,86 m2
Razem134,89 m2
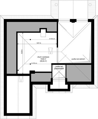
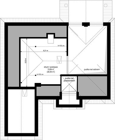
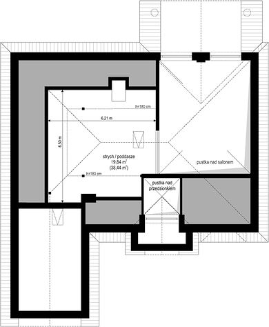
Attic

1. Strych19,84 m2 (38,44 m2)
Razem19,84 m2 (38,44 m2)
If you need more information, please feel free to contact us.
Email: vino@jncnhomes.com