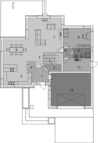
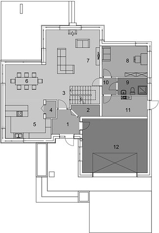
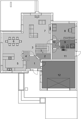
Ground floor

1. Wiatrołap6,58 m2
2. Garderoba3,28 m2
3. Hall + schody11 m2
4. Spiżarnia1,82 m2
5. Kuchnia18,48 m2
6. Jadalnia16,19 m2
7. Pokój dzienny34,39 m2
8. Pokój15,73 m2
9. Łazienka5,58 m2
10. Korytarz2,69 m2
11. Kotłownia10,35 m2
12. Garaż dwustanowiskowy39,27 m2
Razem165,36 m2
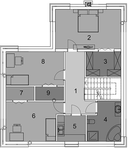
Attic

1. Hall10,11 m2
2. Pokój19,75 m2
3. Garderoba6,56 m2
4. Łazienka9,29 m2
5. Pom. gospodarcze5,51 m2
6. Pokój16,01 m2
7. Garderoba2,93 m2
8. Pokój14,87 m2
9. Garderoba2,88 m2
Razem87,91 m2
If you need more information, please feel free to contact us.
Email: vino@jncnhomes.com