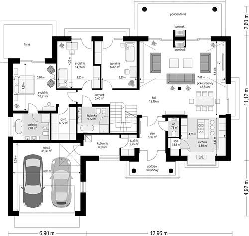
Ground floor

1. Wiatrołap6,32 m2
2. Wc1,75 m2
3. Kuchnia14,50 m2
4. Spiżarnia1,58 m2
5. Hall15,49 m2
6. Pokój dzienny42,84 m2
7. Korytarz5,40 m2
8. Pokój14,66 m2
9. Pokój14,66 m2
10. Pokój18,21 m2
11. Łazienka7,87 m2
12. Garderoba6,72 m2
13. Łazienka6,72 m2
14. Garderoba2,75 m2
15. Kotłownia6,20 m2
16. Garaż dwustanowiskowy36,30 m2
Razem201,97 m2
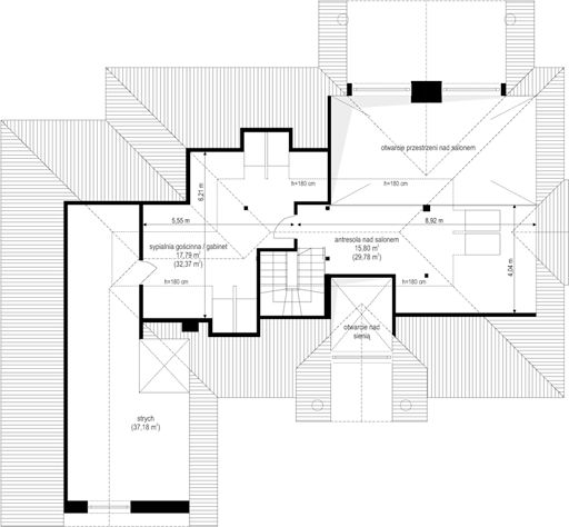
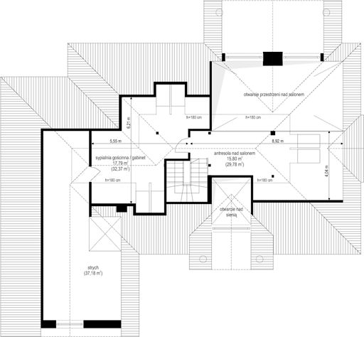
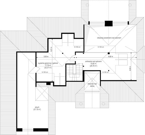
Attic

1. Antresola15,80 m2 (29,78 m2)
2. Pokój17,79 m2 (32,37 m2)
3. Strych
Razem33,59 m2 (62,15 m2)
If you need more information, please feel free to contact us.
Email: vino@jncnhomes.com