Ground floor

1. Wiatrołap6,53 m2
2. Spiżarnia1,73 m2
3. Kuchnia11,57 m2
4. Hall14,29 m2
5. Pokój dzienny + jadalnia38,02 m2
6. Pokój10,20 m2
7. Pokój14,64 m2
8. Garderoba3,32 m2
9. Łazienka3,57 m2
10. Kotłownia5,77 m2
11. Wc2,02 m2
12. Garaż dwustanowiskowy33,63 m2
Razem145,29 m2
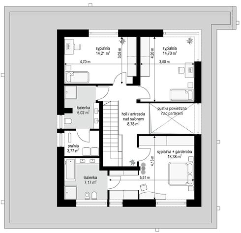
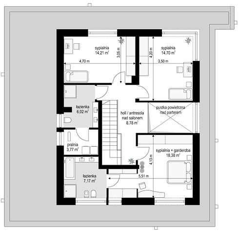
Attic

1. Korytarz8,78 m2
2. Pokój14,70 m2
3. Pokój14,21 m2
4. Łazienka6,02 m2
5. Pom. gospodarcze3,77 m2
6. Łazienka7,17 m2
7. Pokój18,38 m2
Razem73,03 m2
If you need more information, please feel free to contact us.
Email: vino@jncnhomes.com