Ground floor

1. Wiatrołap5,81 m2
2. Hall5 m2
3. Łazienka3,39 m2
4. Spiżarnia1,58 m2
5. Kuchnia12,36 m2
6. Jadalnia17,01 m2
7. Korytarz12,43 m2
8. Pokój dzienny21,90 m2
9. Pokój9,01 m2
10. Kotłownia4,41 m2
11. Garaż dwustanowiskowy33,75 m2
Razem126,65 m2
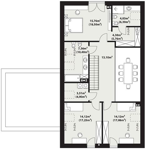
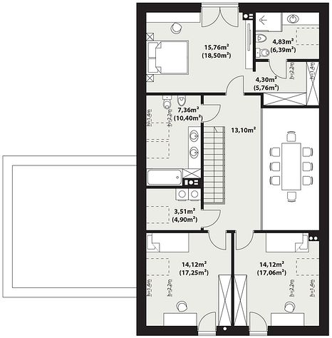
Attic

1. Korytarz13,10 m2
2. Pokój14,12 m2 (17,06 m2)
3. Pokój14,12 m2 (17,25 m2)
4. Pom. gospodarcze3,51 m2 (4,90 m2)
5. Łazienka7,36 m2 (10,40 m2)
6. Pokój15,76 m2 (18,50 m2)
7. Garderoba4,30 m2 (5,76 m2)
8. Łazienka4,83 m2 (6,39 m2)
Razem77,10 m2 (93,36 m2)
If you need more information, please feel free to contact us.
Email: vino@jncnhomes.com