Basement plan

1. Korytarz1,50 m2
2. Kotłownia17,25 m2
3. Piwnica9,15 m2
4. Garaż wielostanowiskowy82,60 m2
Razem110,50 m2
Ground floor plan

1. Korytarz7,50 m2
2. Pokój14,45 m2
3. Pokój12,50 m2
4. Łazienka6,50 m2
5. Wc1,80 m2
6. Kuchnia14,15 m2
7. Pokój dzienny + jadalnia33,10 m2
8. Pom. gospodarcze3 m2
9. Korytarz7,25 m2
Razem100,25 m2
1st floor plan

1. Korytarz12,80 m2
2. Pokój16,85 m2
3. Pokój15 m2
4. Łazienka5,35 m2
5. Wc2,15 m2
6. Kuchnia12,90 m2
7. Pokój dzienny + jadalnia32,95 m2
8. Garderoba3,70 m2
Razem101,70 m2
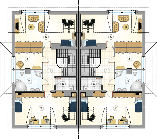
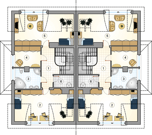
Attic projection

1. Korytarz9,70 m2
2. Pokój20,10 m2
3. Łazienka9,10 m2
4. Garderoba9,40 m2
5. Pokój19,95 m2
6. Kotłownia4,40 m2
Razem72,65 m2
If you need more information, please feel free to contact us.
Email: vino@jncnhomes.com