Modern houses
LK&1070
PLAN DESCRIPTION
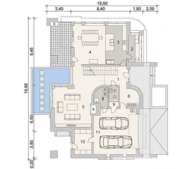
FLOOR PLANS

Ground floor

Floor


FULL SPECS & FEATURES
1. Usable area237,38 m²
2. Area garage38,05 m²
3. Additional area14,44 m²
4. Total surface497,6 m²
5. Building area253,9 m²
6. Net volume1034,7 m³
7. Gross volume1999,5 m³
8. Building height8,9 m
9. Roof angle20 °
10. Roof area173,5 m²
11. Сeiling height2,70/2,60 m
12. Minimum plot size27,95 x 22,1 m


If you need more information, please feel free to contact us.
Email: vino@jncnhomes.com