Modern houses
LK&1323
PLAN DESCRIPTION
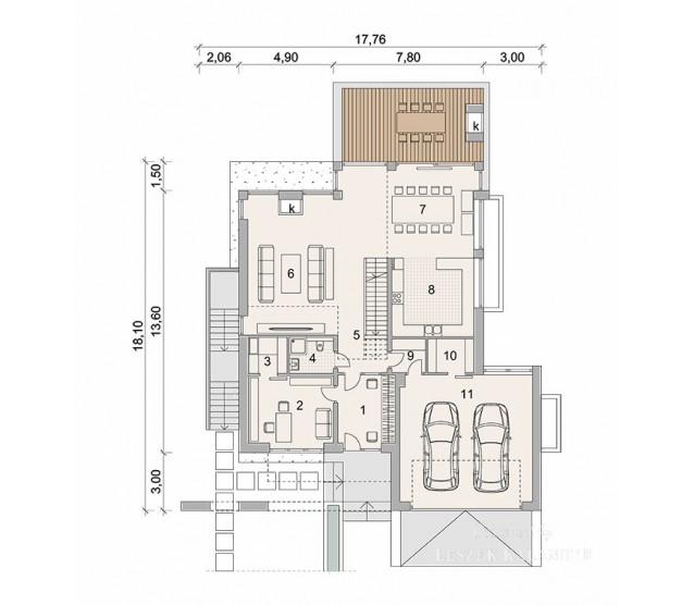
FLOOR PLANS

Basement

Ground floor

Floor


FULL SPECS & FEATURES
1. Usable area227,85 m²
2. Basement area175,2 m²
3. Area garage45,24 m²
4. Additional area4,22 m²
5. Total surface805,98 m²
6. Building area234,2 m²
7. Net volume1269,1 m³
8. Gross volume1872,14 m³
9. Building height8,8 m
10. Roof area249,13 m²
11. Сeiling height2,50 m; 3,00 m
12. Minimum plot size28,1 x 24,7 m


If you need more information, please feel free to contact us.
Email: vino@jncnhomes.com