Modern houses
LK&1310
PLAN DESCRIPTION
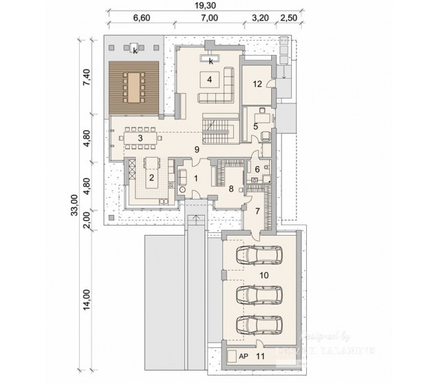
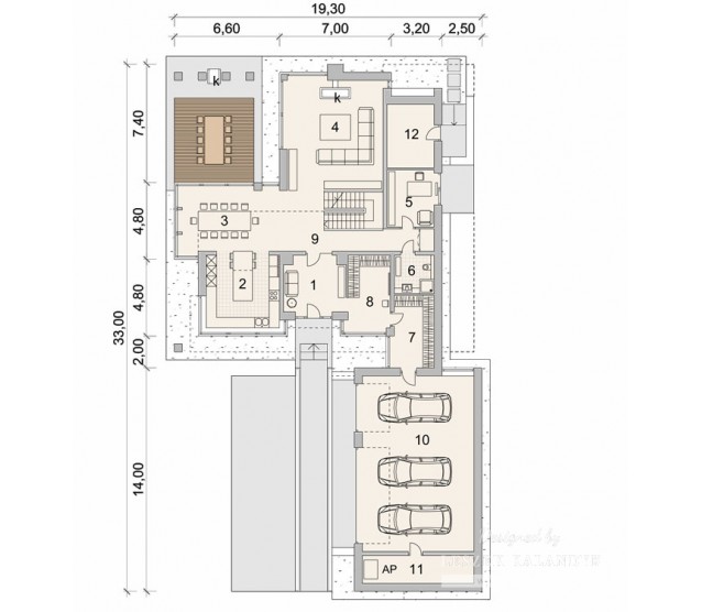
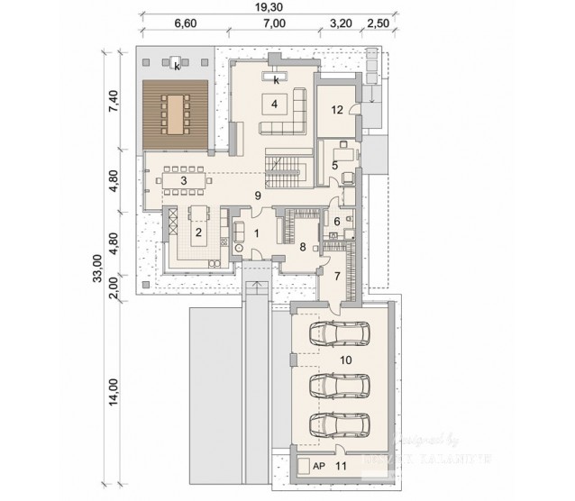
FLOOR PLANS

Basement

Ground floor

Floor


FULL SPECS & FEATURES
1. Usable area305,81 m²
2. Basement area51,23 m²
3. Area garage77 m²
4. Additional area125,02 m²
5. Total surface623,05 m²
6. Building area378,51 m²
7. Net volume1752,1 m³
8. Gross volume2196,68 m³
9. Building height10 m
10. Roof angle33 °
11. Сeiling height2,7 m
12. Minimum plot size39,5 x 36,3 m


If you need more information, please feel free to contact us.
Email: vino@jncnhomes.com