Modern houses
LK&1549
PLAN DESCRIPTION
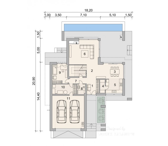
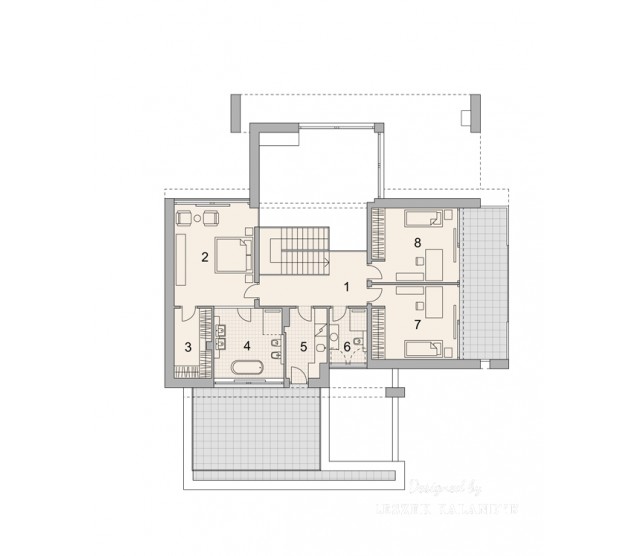
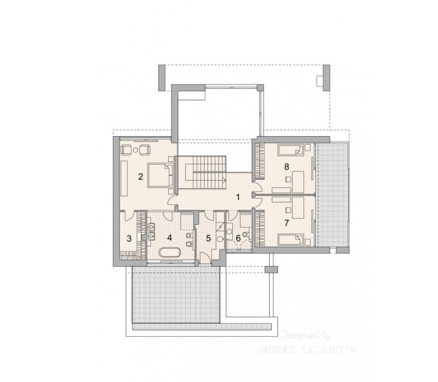
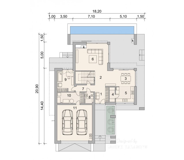
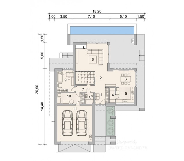
FLOOR PLANS

Ground floor

Floor


FULL SPECS & FEATURES
1. Usable area208,77 m²
2. Area garage46,23 m²
3. Total surface338,66 m²
4. Building area227,18 m²
5. Net volume815,04 m³
6. Gross volume886,51 m³
7. Building height7,35 m
8. Roof angle1,5 °
9. Roof area222,11 m²
10. Сeiling height2,7 m
11. Minimum plot size24,20 x 27,90 m


If you need more information, please feel free to contact us.
Email: vino@jncnhomes.com