Traditional houses
LK&471
PLAN DESCRIPTION
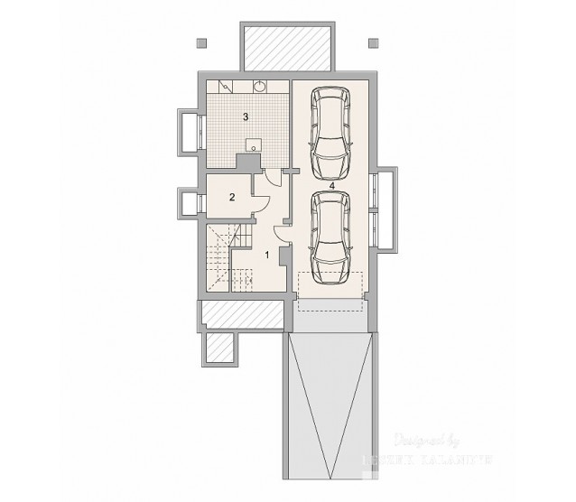
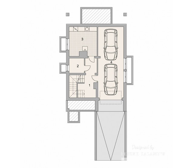
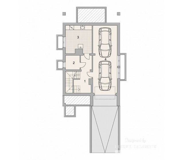
FLOOR PLANS

Basement

Ground floor

Attic


FULL SPECS & FEATURES
1. Usable area105,91 m²
2. Basement area26,84 m²
3. Area garage31,6 m²
4. Total surface183 m²
5. Building area104 m²
6. Net volume481 m³
7. Gross volume860 m³
8. Energy for heating14,75 kWh/m²*year
9. Building height8,86 m
10. Attic wall height0,9 m
11. Roof angle45 °
12. Roof area183 m²
13. Сeiling height2,63 m
14. Minimum plot size16 x 23,97 m


If you need more information, please feel free to contact us.
Email: vino@jncnhomes.com