Traditional houses
LK&658
PLAN DESCRIPTION
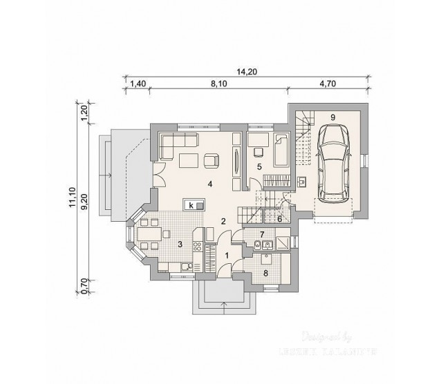
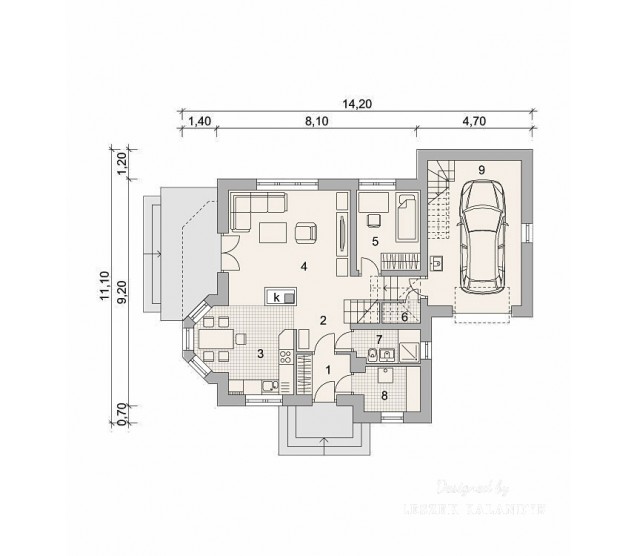
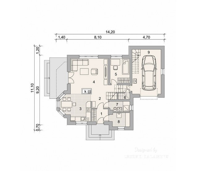
FLOOR PLANS

Ground floor

Attic


FULL SPECS & FEATURES
1. Usable area107,51 m²
2. Area garage20,52 m²
3. Additional area9 m²
4. Total surface214 m²
5. Building area114,9 m²
6. Net volume330 m³
7. Gross volume790 m³
8. Energy for heating6,96 kWh/m²*year
9. Building height8,96 m
10. Attic wall height1,13 m
11. Roof angle42 °
12. Roof area198 m²
13. Сeiling height2,70/2,80 m
14. Minimum plot size22,2 x 18,1 m


If you need more information, please feel free to contact us.
Email: vino@jncnhomes.com