Traditional houses
LK&1109
PLAN DESCRIPTION
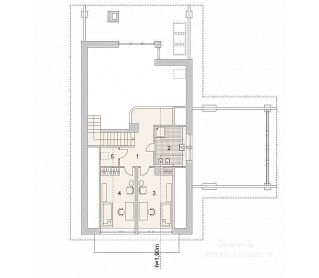
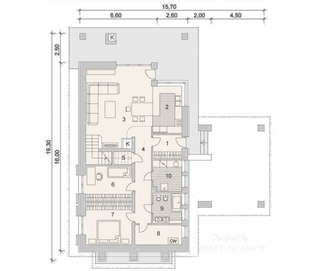
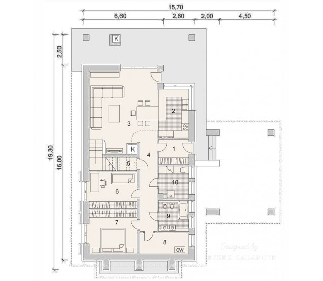
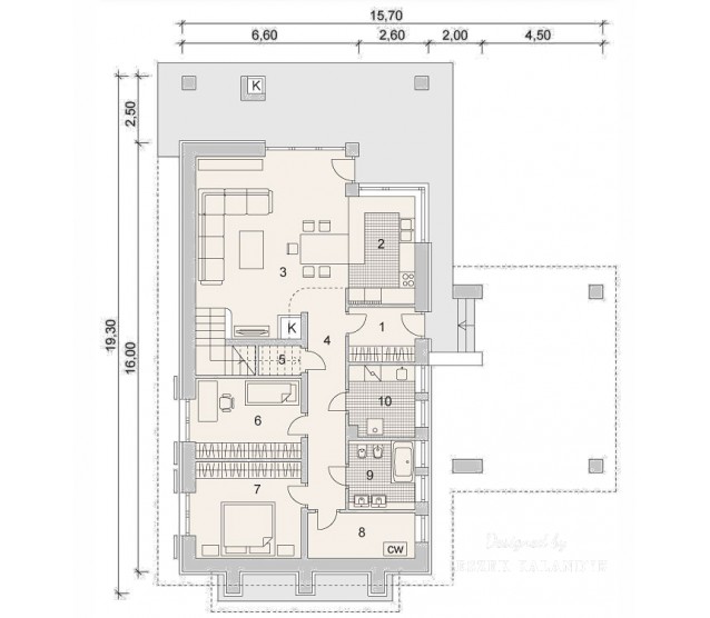
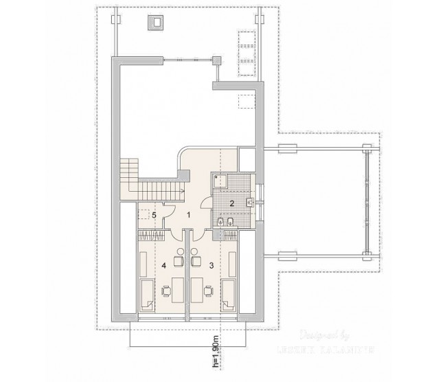
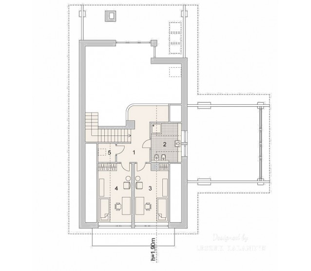
FLOOR PLANS

Ground floor

Attic


FULL SPECS & FEATURES
1. Usable area129,5 m²
2. Additional area13,1 m²
3. Total surface345,77 m²
4. Building area154,3 m²
5. Net volume511,96 m³
6. Gross volume986,56 m³
7. Building height7,44 m
8. Attic wall height1,2 m
9. Roof angle35 °
10. Roof area343,14 m²
11. Сeiling height2,65 m
12. Minimum plot size25,5 x 22,7 m


If you need more information, please feel free to contact us.
Email: vino@jncnhomes.com