ABOUT MODULAR STEEL FRAME
Modular Steel Frame
Built Offsite
Our Policies
HOME
JNCN STEEL CONSTRUCTION
TECHNOLOGY
BENEFITS
MODULAR HOMES
INSPIRATIONS -1
INSPIRATIONS -2
INSPIRATIONS -2
INSPIRATIONS -3
INSPIRATIONS -4
PORTFOLIO
CUSTOM DESIGN
HOUSE PLANS
PLUG AND PLAY HOMES
CUSTOM PROCESS
ABOUT US
CONTACT
United States / CN
Login
Traditional houses
LK&1135
PLAN DESCRIPTION
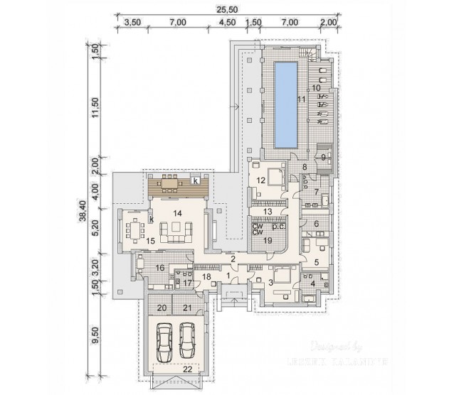
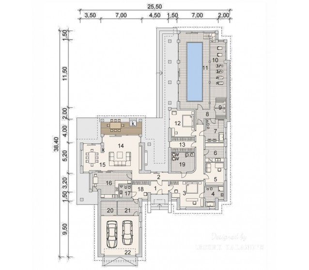
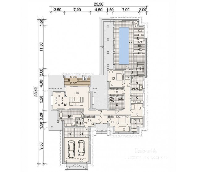
FLOOR PLANS
Ground floor
FULL SPECS & FEATURES
1. Usable area
314,54 m²
2. Area garage
42,25 m²
3. Additional area
28,32 m²
4. Total surface
642,67 m²
5. Building area
530,72 m²
6. Net volume
1453,57 m³
7. Gross volume
3450,57 m³
8. Building height
7,67 m
9. Roof angle
37 °
10. Roof area
774,44 m²
11. Сeiling height
2,7 m
12. Minimum plot size
46,4 x 33 m
If you need more information, please feel free to contact us.
Email:
vino@jncnhomes.com