Traditional houses
LK&1140
PLAN DESCRIPTION
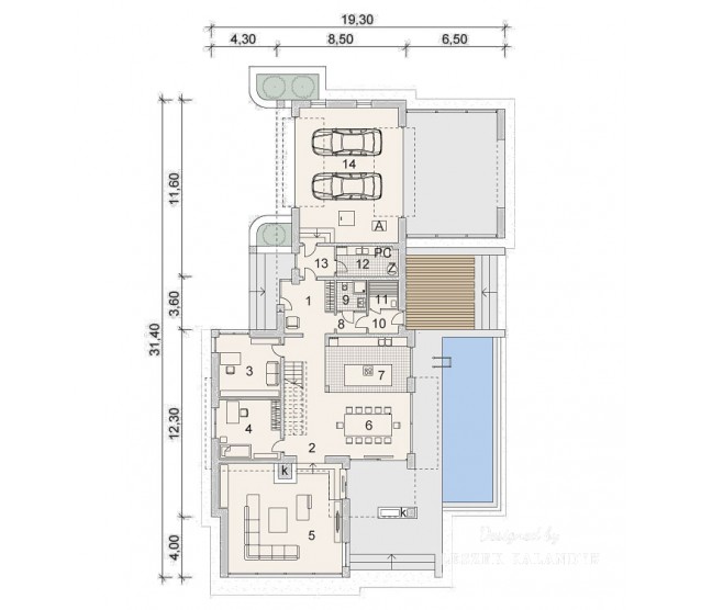
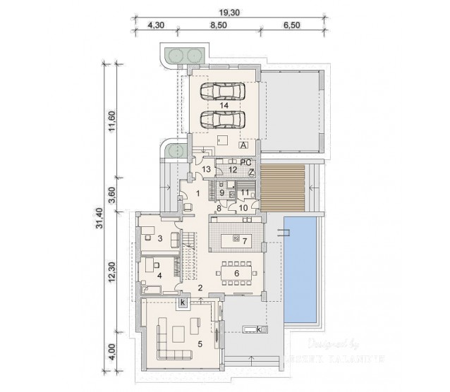
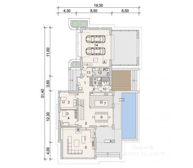
FLOOR PLANS

Ground floor

Attic



FULL SPECS & FEATURES
1. Usable area311,88 m²
2. Area garage57,75 m²
3. Additional area1,15 m²
4. Total surface654,36 m²
5. Building area327,18 m²
6. Net volume1316 m³
7. Gross volume1861,7 m³
8. Energy for heating15,56 kWh/m²*year
9. Building height9 m
10. Attic wall height1,25 m
11. Roof angle39 °
12. Roof area553 m²
13. Сeiling height2,7 m
14. Minimum plot size39,4 x 26,3 m


If you need more information, please feel free to contact us.
Email: vino@jncnhomes.com