Traditional houses
LK&1212
PLAN DESCRIPTION
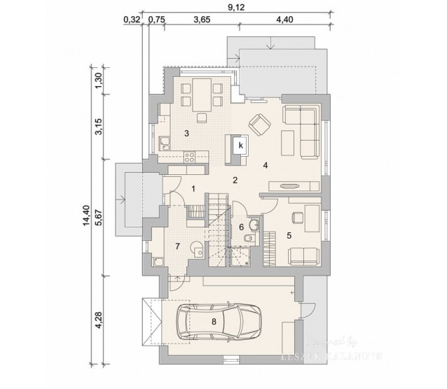
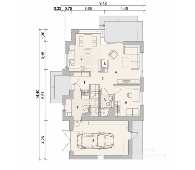
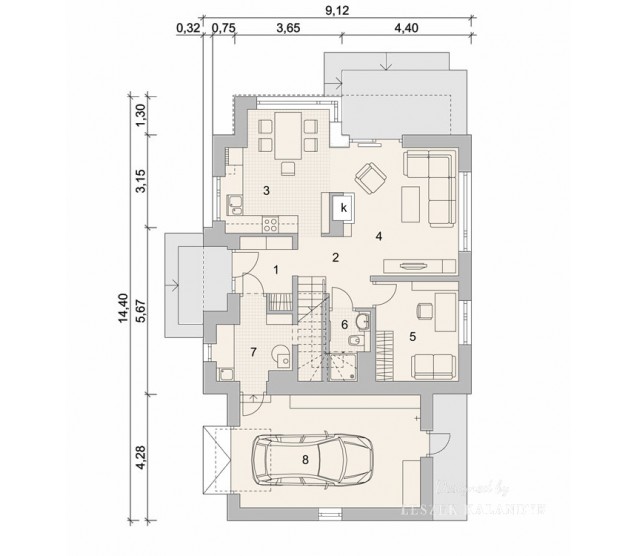
FLOOR PLANS

Ground floor

Attic


FULL SPECS & FEATURES
1. Usable area95,27 m²
2. Area garage23,84 m²
3. Attic area(24,10) 14,34 m²
4. Additional area10,28 m²
5. Total surface223,32 m²
6. Building area114,11 m²
7. Net volume412 m³
8. Gross volume689 m³
9. Building height8,5 m
10. Attic wall height0,77 m
11. Roof angle42 °
12. Roof area202 m²
13. Сeiling height2,64 / 2,75 m
14. Minimum plot size17,12 x 22,4 m


If you need more information, please feel free to contact us.
Email: vino@jncnhomes.com