ABOUT MODULAR STEEL FRAME
Modular Steel Frame
Built Offsite
Our Policies
HOME
JNCN STEEL CONSTRUCTION
TECHNOLOGY
BENEFITS
MODULAR HOMES
INSPIRATIONS -1
INSPIRATIONS -2
INSPIRATIONS -2
INSPIRATIONS -3
INSPIRATIONS -4
PORTFOLIO
CUSTOM DESIGN
HOUSE PLANS
PLUG AND PLAY HOMES
CUSTOM PROCESS
ABOUT US
CONTACT
United States / CN
Login
Traditional houses
LK&1548
PLAN DESCRIPTION
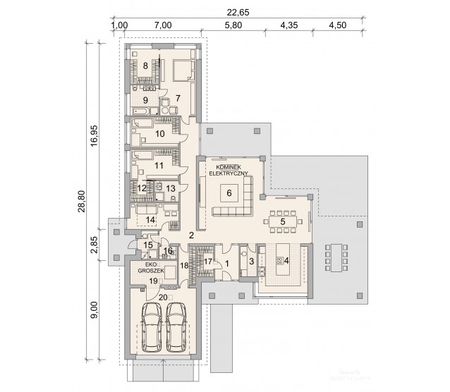
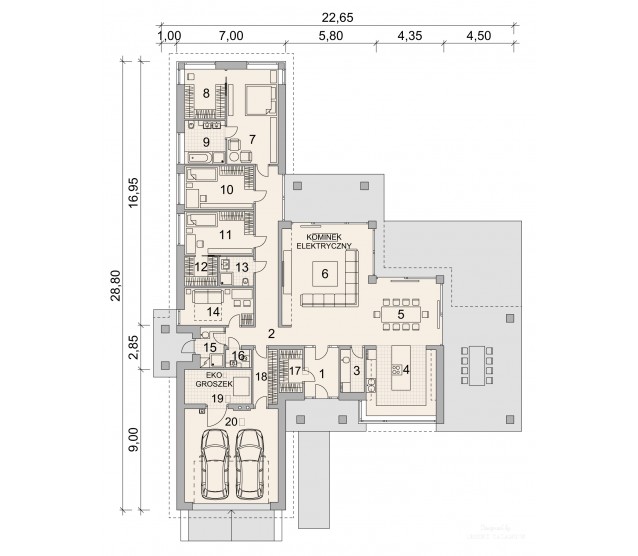
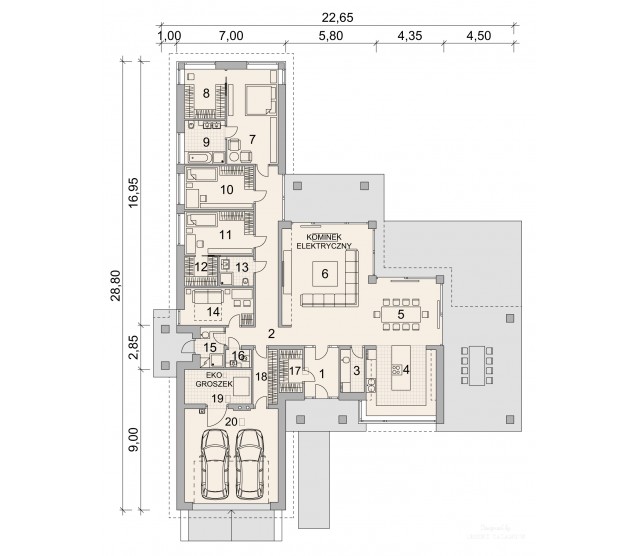
FLOOR PLANS
Ground floor
FULL SPECS & FEATURES
1. Usable area
197,64 m²
2. Additional area
50,92 m²
3. Total surface
366,89 m²
4. Building area
311,42 m²
5. Net volume
844,00 m³
6. Gross volume
1201,00 m³
7. Building height
6,03 m
8. Roof angle
35 °
9. Roof area
339,66 m²
10. Сeiling height
2,92 m
11. Minimum plot size
28,65 x 36,80 m
If you need more information, please feel free to contact us.
Email:
vino@jncnhomes.com