Traditional houses
LK&1546
PLAN DESCRIPTION
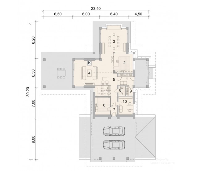
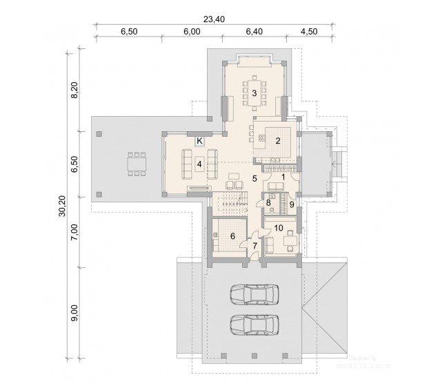
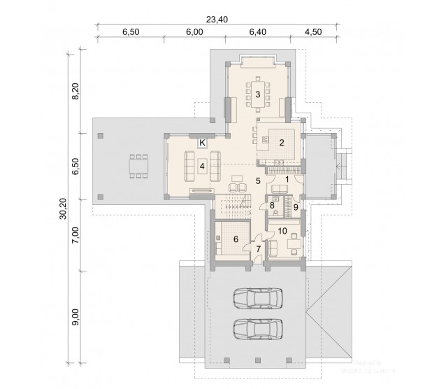
FLOOR PLANS

Ground floor

Attic


FULL SPECS & FEATURES
1. Usable area295,23 m²
2. Total surface652,55 m²
3. Building area313,62 m²
4. Net volume1087,48 m³
5. Gross volume1456,53 m³
6. Building height9,20 m
7. Roof angle43 °
8. Roof area691,71 m²
9. Сeiling height2,70; 3,00 m
10. Minimum plot size29,90 x 38,70 m


If you need more information, please feel free to contact us.
Email: vino@jncnhomes.com