Barnhouses
LK&1424
PLAN DESCRIPTION
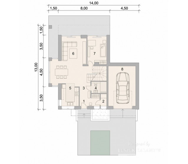
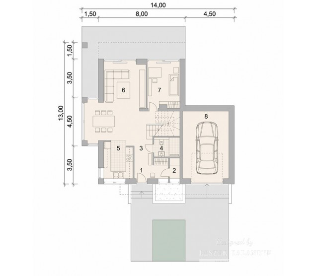
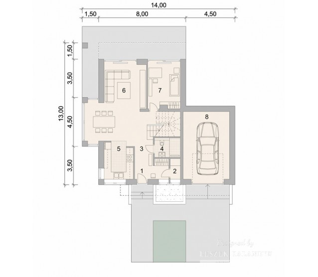
FLOOR PLANS

Ground floor

Attic


FULL SPECS & FEATURES
1. Usable area129,03 m²
2. Total surface229,44 m²
3. Building area143,4 m²
4. Net volume516,62 m³
5. Gross volume643,53 m³
6. Building height8,9 m
7. Attic wall height1,2 m
8. Roof angle47 °
9. Сeiling height2,70 m; 3,00 m
10. Minimum plot size21 x 21 m


If you need more information, please feel free to contact us.
Email: vino@jncnhomes.com