Barnhouses
LK&1475
PLAN DESCRIPTION
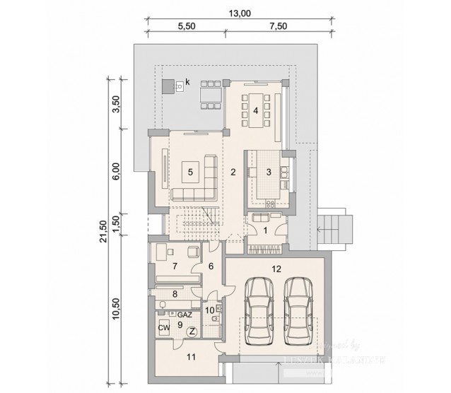
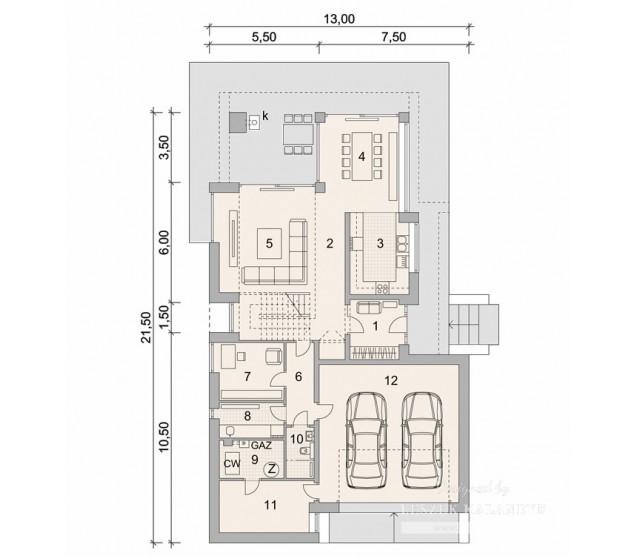
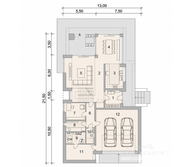
FLOOR PLANS

Ground floor

Attic


FULL SPECS & FEATURES
1. Usable area185,8 m²
2. Area garage48,3 m²
3. Total surface385,15 m²
4. Building area223,5 m²
5. Net volume833 m³
6. Gross volume1475 m³
7. Building height9,31 m
8. Attic wall height0,87 m
9. Roof angle43 °
10. Roof area291 m²
11. Сeiling height2,7 m
12. Minimum plot size28,5 x 20 m


If you need more information, please feel free to contact us.
Email: vino@jncnhomes.com