Barnhouses
LK&1516
PLAN DESCRIPTION
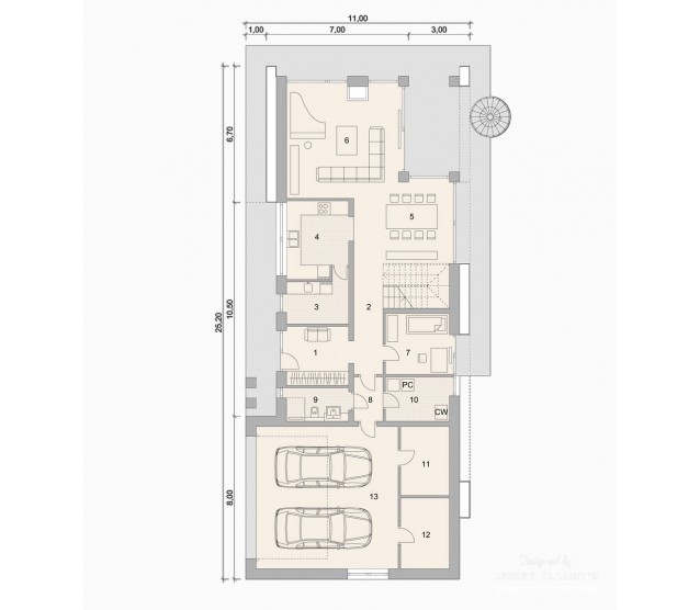
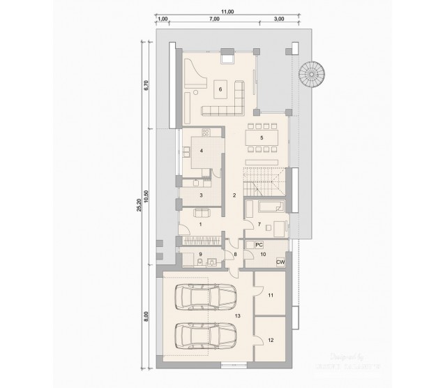
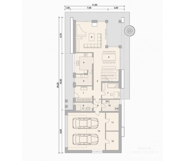
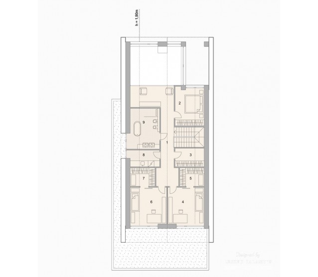
FLOOR PLANS

Ground floor

Attic


FULL SPECS & FEATURES
1. Usable area207,98 m²
2. Area garage48,89 m²
3. Total surface391,07 m²
4. Building area229,8 m²
5. Net volume957,33 m³
6. Gross volume1240,89 m³
7. Building height9 m
8. Roof angle41 °
9. Сeiling height2,70 m; 3,25 m
10. Minimum plot size18,5 x 32,7 m


If you need more information, please feel free to contact us.
Email: vino@jncnhomes.com