Manors houses
LK&973
PLAN DESCRIPTION
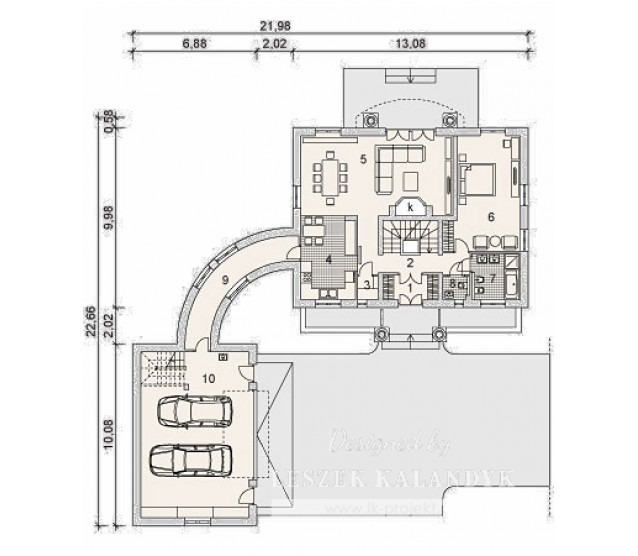
FLOOR PLANS

Basement


Ground floor


Attic


FULL SPECS & FEATURES
1. Usable area178,18 m²
2. Basement area46,24 m²
3. Area garage12,48 m²
4. Additional area86,63 m²
5. Total surface510 m²
6. Building area232 m²
7. Net volume990 m³
8. Gross volume1480 m³
9. Building height9 m
10. Attic wall height0,70/0,55 m
11. Roof angle62/51/30/24 °
12. Roof area380 m²
13. Сeiling height2,40/2,70/2,80 m
14. Minimum plot size28,98 x 30,88 m


If you need more information, please feel free to contact us.
Email: vino@jncnhomes.com